Przejdź do treści
Agat+ fabryka okien i drzwi

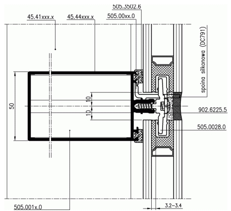
Fasada FA 50 wariant SL – przekrój przez słup fasadowy

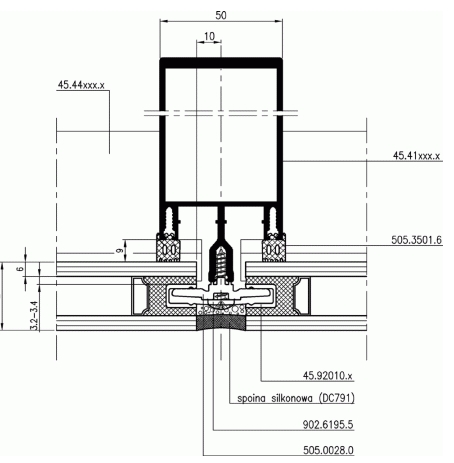
Fasada FA 50 wariant SL – przekrój przez poprzeczkę fasadowy