Okna obrotowe
Okna obrotowe
Zastosowanie:
Okna obrotowe są ciekawą alternatywą dla klasycznych okien.
Stosowane w budownictwie mieszkaniowym w szczególności na rynkach Skandynawskich
Stanowią ciekawe rozwiązanie, szczególnie tam, gdzie mamy ograniczoną powierzchnię pomieszczenia.
Charakterystyka:
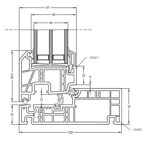
Kształt: prostokątne
Głębokość zabudowy ramy 120 mm
Sposób otwierania: skrzydło obraca się o 180 stopni (pozioma oś obrotu)
Możliwość zastosowania oszklenia o grubości 24 lub 36mm w układzie dwuszybowym lub trzyszybowym.
Wyposażenie:
– Okno jest otwierane za pomocą klamki (odgiętej) zamontowanej w dolnej części skrzydła.
– Okucie firmy IPA
– blokada zabezpieczającą przed niepożądanym otwarciem przez dzieci tzw restryktor
Opcje: klamka z kluczykiem, frezowanie furingu
Zalety:
– bezproblemowe mycie okien
– po obróceniu skrzydła o 180° – możliwość wygodnego mycia zewnętrznej strony szyby
– wysoka trwałość i funkcjonalność w długim okresie eksploatacji
– bardzo dobra szczelność (wiatr napierając na skrzydło okienne dociska je do ramy)
Wykonanie:
System dedykowany REHAU NORDIC DESIGN PLUS




